Ввідно-розподільчі щити
Панелі розподільчих щитів
Ящики силові
Щити управління
Конденсаторні установки
Збірки кабельні
Щити поверхові та квартирні
Щити тимчасового електроспоживання
Щити освітлення
Габаритні розміри автоматичних вимикачів фірми ETI POWER 

Габаритні розміри

Габаритні розміри автоматичних вимикачів ETI POWER залежать від типорозміру, номінального струму та способу підключення. У модельному ряді доступні як стаціонарні, так і викочувальні виконання з вертикальним, горизонтальним або фронтальним підключенням, що дозволяє адаптувати їх до конкретних умов монтажу та електричних щитів.

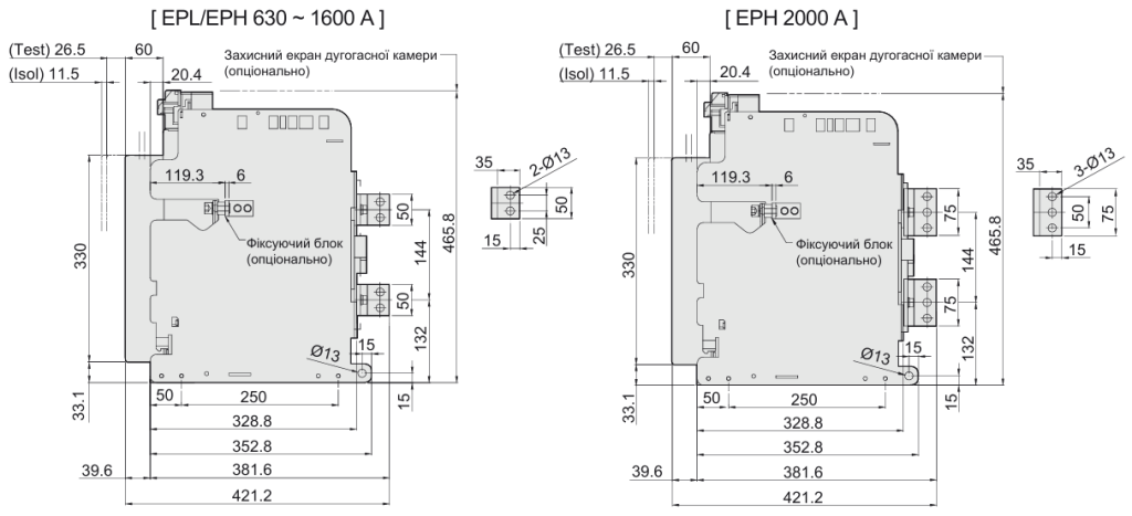
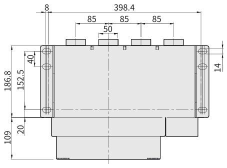
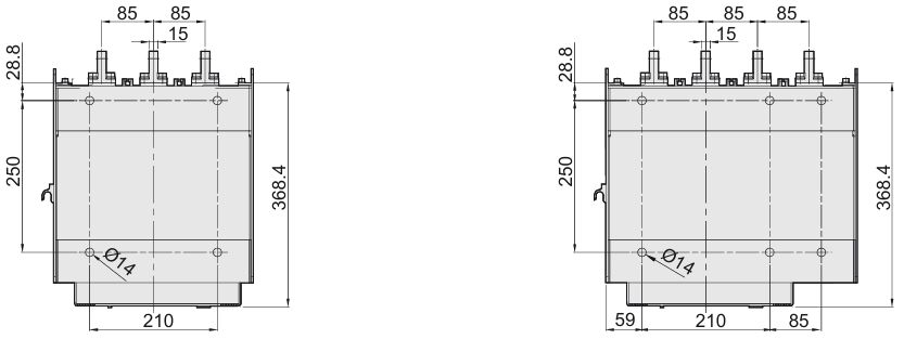
EPL/EPH стаціонарного типу 630 ~ 2000 A

(EPL06 ~ 16 / EPH06 ~ 20 типорозмір A)

Вигляд спереду

Габаритні розміри автоматичних вимикачів фірми ETI POWER 

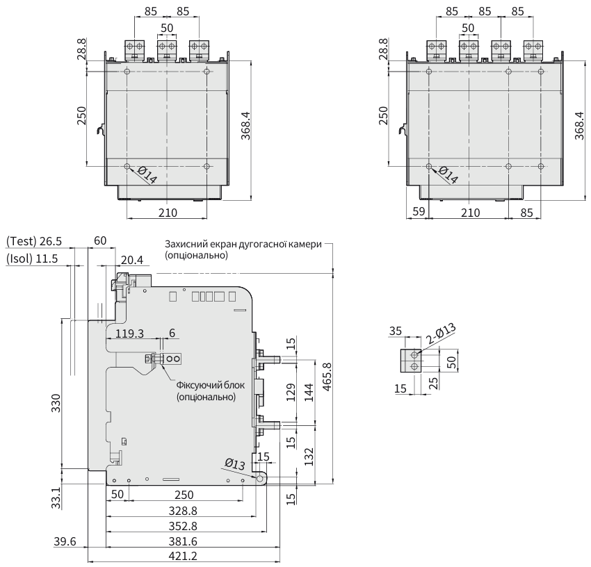
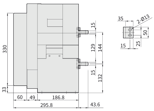
Вертикальний тип підключення

Вертикальний тип підключення

Габаритні розміри автоматичних вимикачів фірми ETI POWER 

Розміри на цій сторінці можуть бути змінені без попереднього інформування.
Що стосується вимикачів типорозміру A стаціонарного типу EPH 2000 A, можливе лише вертикальне підключення.

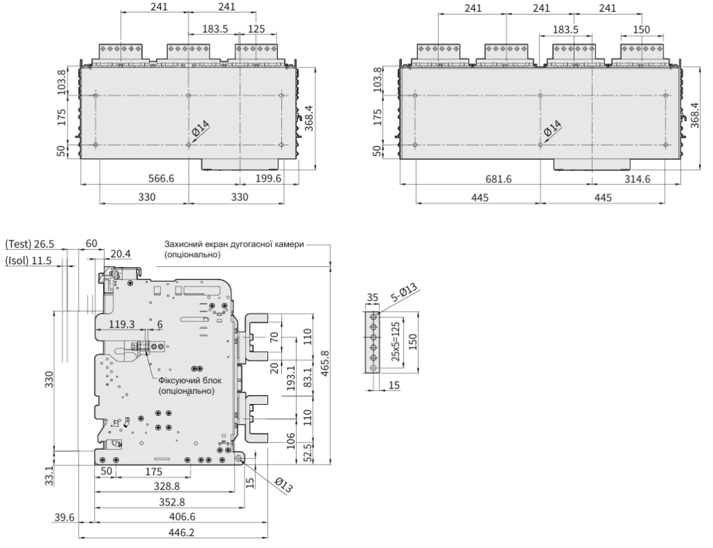
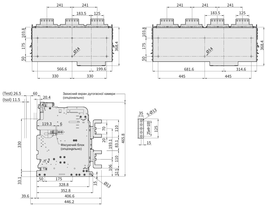
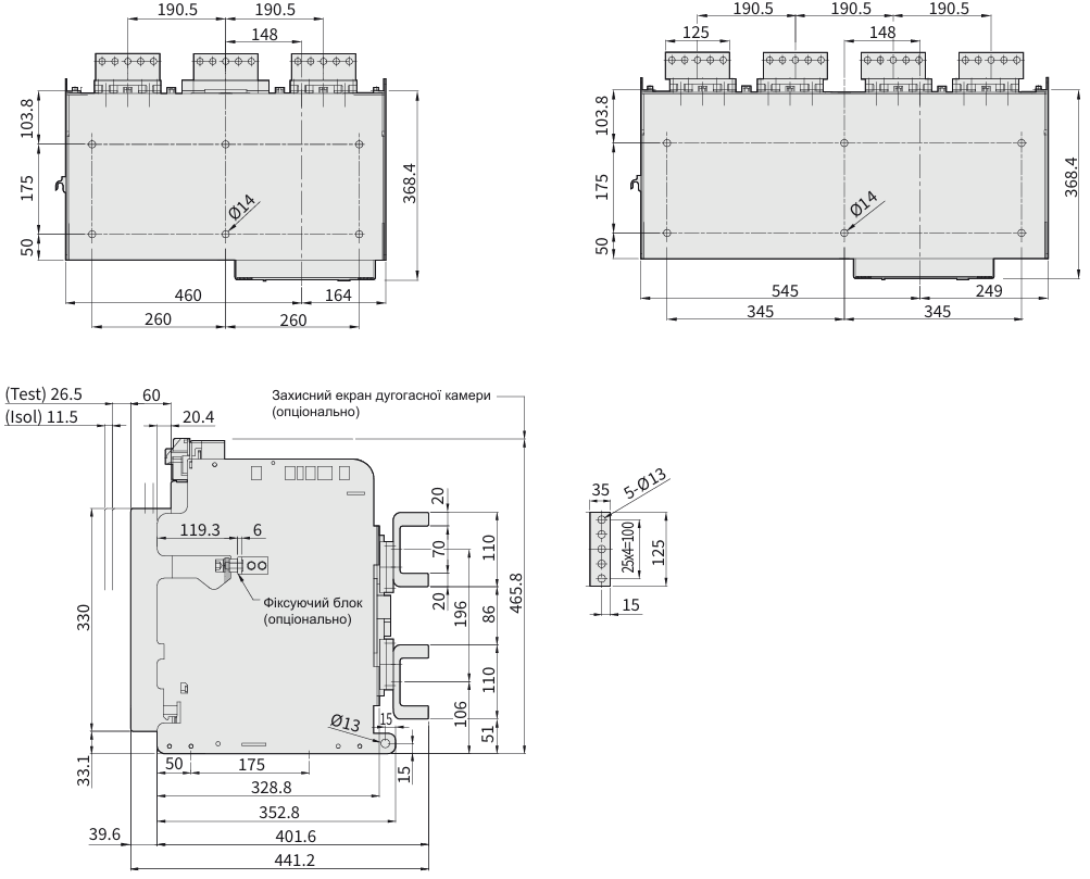
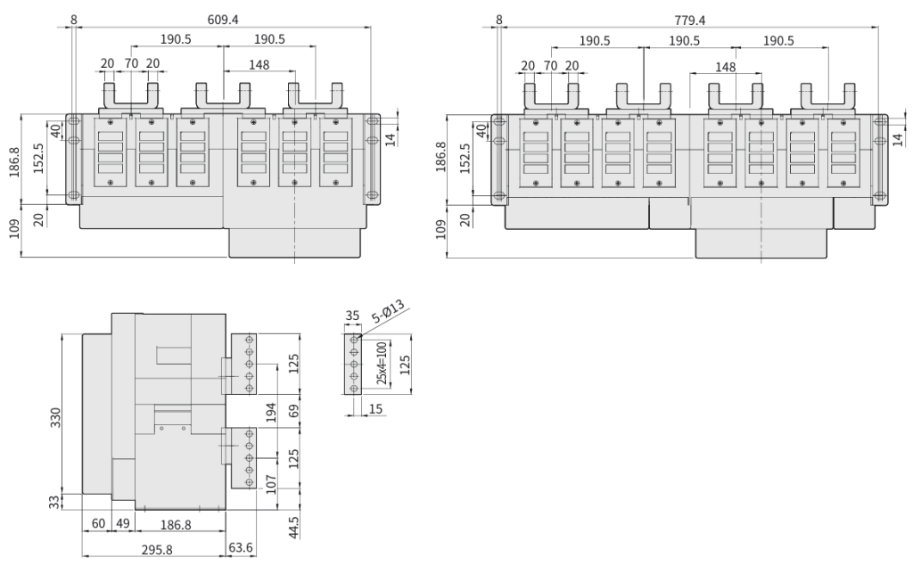
Горизонтальний тип підключення (630 ~ 1600 A)

Габаритні розміри автоматичних вимикачів фірми ETI POWER 
Габаритні розміри автоматичних вимикачів фірми ETI POWER 
Габаритні розміри автоматичних вимикачів фірми ETI POWER 

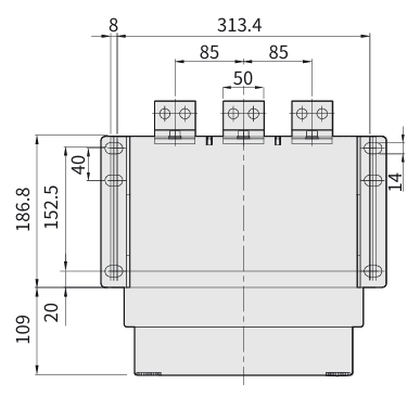
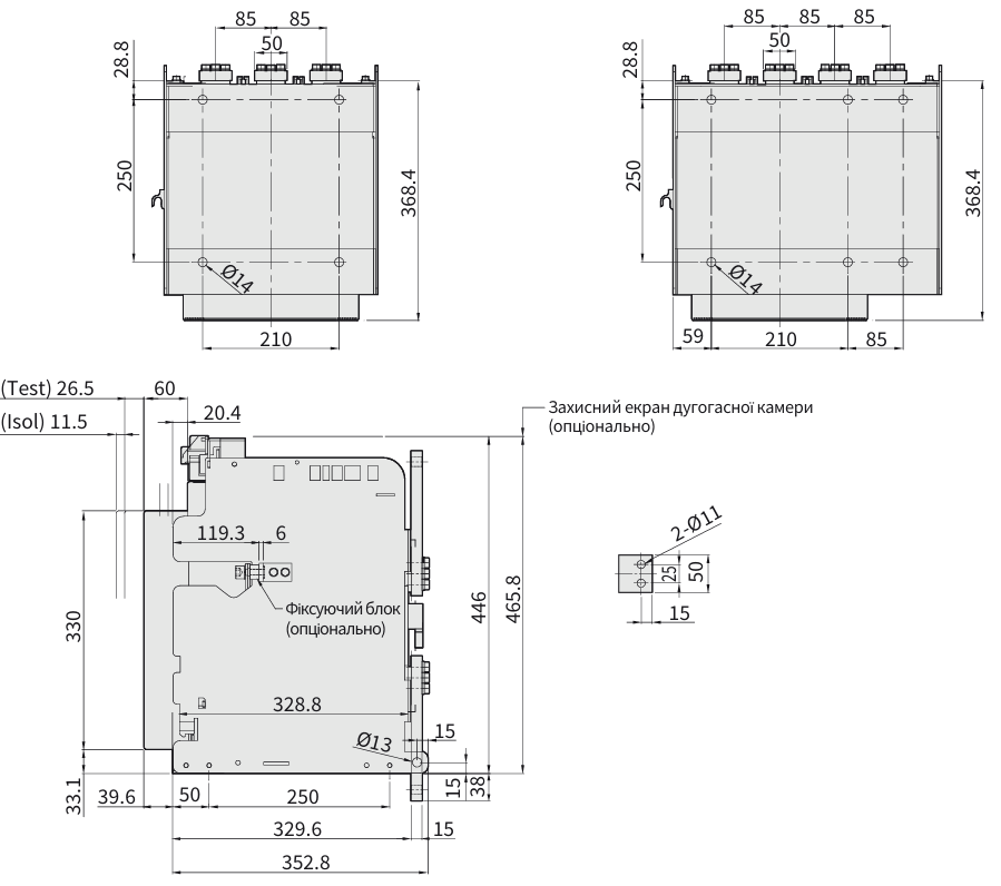
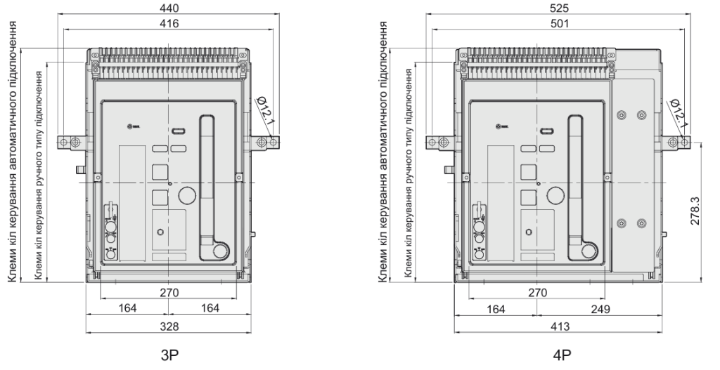
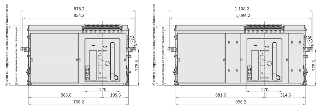
Фронтальний тип підключення (630 ~ 1600 A)

Габаритні розміри автоматичних вимикачів фірми ETI POWER 
Габаритні розміри автоматичних вимикачів фірми ETI POWER 
Габаритні розміри автоматичних вимикачів фірми ETI POWER 

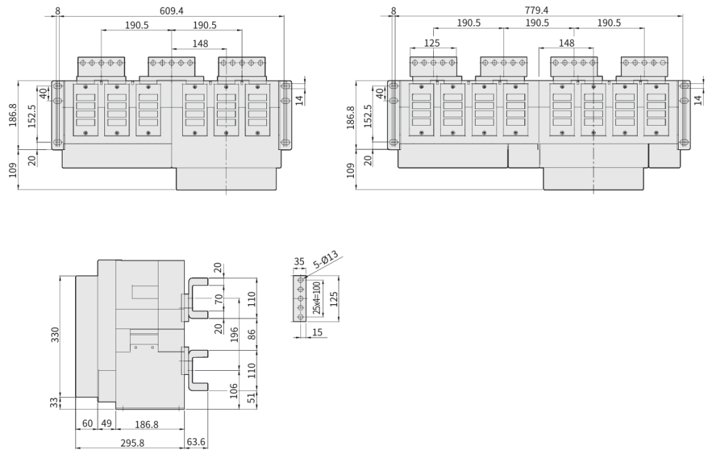
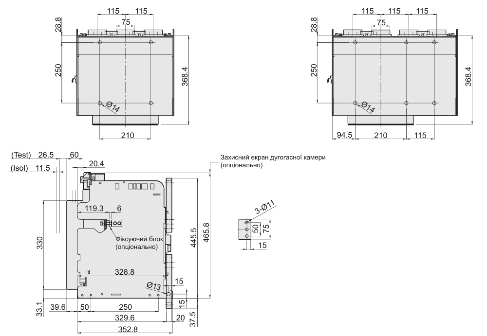
EPL/EPH викочувального типу 630 ~ 2000 A

(EPL06 ~ 16/EPH06 ~ 20 типорозмір A)

Вигляд спереду

Габаритні розміри автоматичних вимикачів фірми ETI POWER 

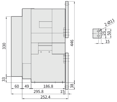
Вертикальний тип підключення

Габаритні розміри автоматичних вимикачів фірми ETI POWER 
Габаритні розміри автоматичних вимикачів фірми ETI POWER 

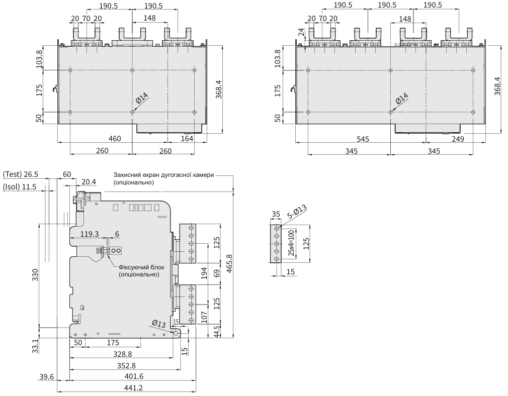
Горизонтальний тип підключення (630 ~ 1600 A)

Габаритні розміри автоматичних вимикачів фірми ETI POWER 

Фронтальний тип підключення

Габаритні розміри автоматичних вимикачів фірми ETI POWER 

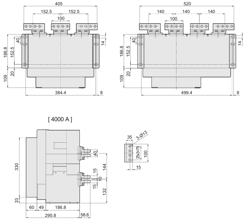
EPL/EPH стаціонарного типу 2000 (630) ~ 3200 А

(EPL/EPH20 (06) ~ 32 типорозмір В)

Вигляд спереду

Габаритні розміри автоматичних вимикачів фірми ETI POWER 

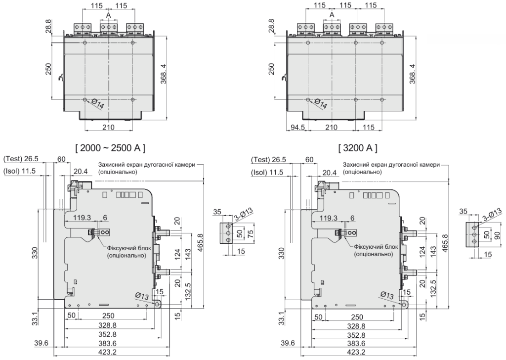
Вертикальний тип підключення

Габаритні розміри автоматичних вимикачів фірми ETI POWER 

Горизонтальний тип підключення

Габаритні розміри автоматичних вимикачів фірми ETI POWER 
Габаритні розміри автоматичних вимикачів фірми ETI POWER 

Фронтальний тип підключення

Габаритні розміри автоматичних вимикачів фірми ETI POWER 

EPL/EPH викочувального типу 2000 (630) ~ 3200 А

(EPL/EPH20 (06) ~ 32 типорозмір B)

Вигляд спереду

Габаритні розміри автоматичних вимикачів фірми ETI POWER 

Вертикальний тип підключення

Габаритні розміри автоматичних вимикачів фірми ETI POWER 

Горизонтальний тип підключення

Габаритні розміри автоматичних вимикачів фірми ETI POWER 
Габаритні розміри автоматичних вимикачів фірми ETI POWER 

Фронтальний тип підключення

Габаритні розміри автоматичних вимикачів фірми ETI POWER 

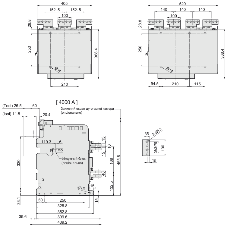
EPH стаціонарного типу 4000 А

(EPH40 типорозмір B)

Вигляд спереду

Габаритні розміри автоматичних вимикачів фірми ETI POWER 

Вертикальний тип підключення

Габаритні розміри автоматичних вимикачів фірми ETI POWER 

Горизонтальний тип підключення

Габаритні розміри автоматичних вимикачів фірми ETI POWER 

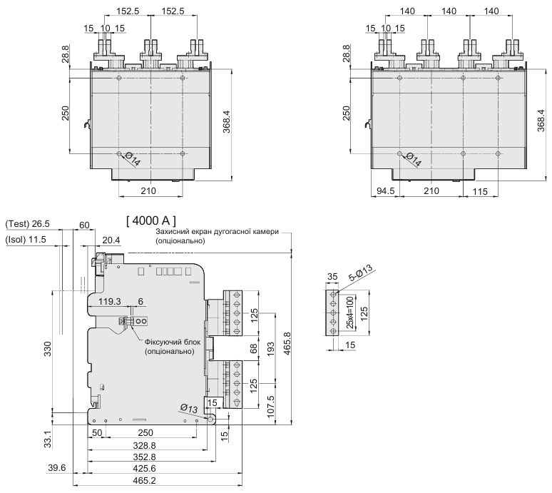
EPH викочувального типу 4000 А

(EPH40 типорозмір B)

Вигляд спереду

Габаритні розміри автоматичних вимикачів фірми ETI POWER 

Вертикальний тип підключення

Габаритні розміри автоматичних вимикачів фірми ETI POWER 

Горизонтальний тип підключення

Габаритні розміри автоматичних вимикачів фірми ETI POWER 

EPH стаціонарного типу 4000 (3200) ~ 5000 A

(EPH40 (30) ~ 50 типорозмір C)

Вигляд спереду

Габаритні розміри автоматичних вимикачів фірми ETI POWER 

Вертикальний тип підключення

Габаритні розміри автоматичних вимикачів фірми ETI POWER 

Горизонтальний тип підключення

Габаритні розміри автоматичних вимикачів фірми ETI POWER 

EPH викочувального типу 4000 (3200) ~ 5000 A

(EPH40 (30) ~ 50 типорозмір типу C)

Вигляд спереду

Габаритні розміри автоматичних вимикачів фірми ETI POWER 

Вертикальний тип підключення

Горизонтальний тип підключення

Габаритні розміри автоматичних вимикачів фірми ETI POWER 

EPN стаціонарного типу 4000 ~ 6300 A

(EPN40 ~ 63 типорозмір D)

Вигляд спереду

Габаритні розміри автоматичних вимикачів фірми ETI POWER 

Вертикальний тип підключення

Габаритні розміри автоматичних вимикачів фірми ETI POWER 
Габаритні розміри автоматичних вимикачів фірми ETI POWER 

Горизонтальний тип підключення

Габаритні розміри автоматичних вимикачів фірми ETI POWER 

EPN викочувального типу 4000 A

(EPN40 типорозмір D)

Вигляд спереду

Габаритні розміри автоматичних вимикачів фірми ETI POWER 

Вертикальний тип підключення

Габаритні розміри автоматичних вимикачів фірми ETI POWER 
Габаритні розміри автоматичних вимикачів фірми ETI POWER 

Горизонтальний тип підключення

Габаритні розміри автоматичних вимикачів фірми ETI POWER 

EPN викочувального типу 5000 ~ 6300 A

(EPN50 ~ 63 типорозмір D)

Вигляд спереду

Габаритні розміри автоматичних вимикачів фірми ETI POWER 

Вертикальний тип підключення

Габаритні розміри автоматичних вимикачів фірми ETI POWER 

Горизонтальний тип підключення

Габаритні розміри автоматичних вимикачів фірми ETI POWER 

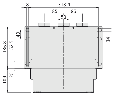
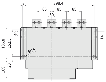
Розміри вирізу панелі для EPL/EPH стаціонарного типу

Виріз у дверцях (для пилозахисної кришки)

Габаритні розміри автоматичних вимикачів фірми ETI POWER 

Виріз у дверцях (для дверного фланцю)

Габаритні розміри автоматичних вимикачів фірми ETI POWER 

Вид збоку

Габаритні розміри автоматичних вимикачів фірми ETI POWER 

Розмір вирізу в задній панелі IP30

Габаритні розміри автоматичних вимикачів фірми ETI POWER 

Таблиця габаритних розмірів вирізу задньої панелі

Габаритні розміри автоматичних вимикачів фірми ETI POWER 

Розміри вирізу панелі для EPL/EPН викочувального типу

Виріз у дверцятах (для пилозахисної кришки)

Габаритні розміри автоматичних вимикачів фірми ETI POWER 

Виріз у дверцятах (для дверного фланцю)

Габаритні розміри автоматичних вимикачів фірми ETI POWER 

Вид збоку

Габаритні розміри автоматичних вимикачів фірми ETI POWER 

Розмір вирізу в задній панелі IP30

Габаритні розміри автоматичних вимикачів фірми ETI POWER 

Таблиця габаритних розмірів вирізу задньої панелі

Габаритні розміри автоматичних вимикачів фірми ETI POWER 

Продукти

Прокрутка до верху